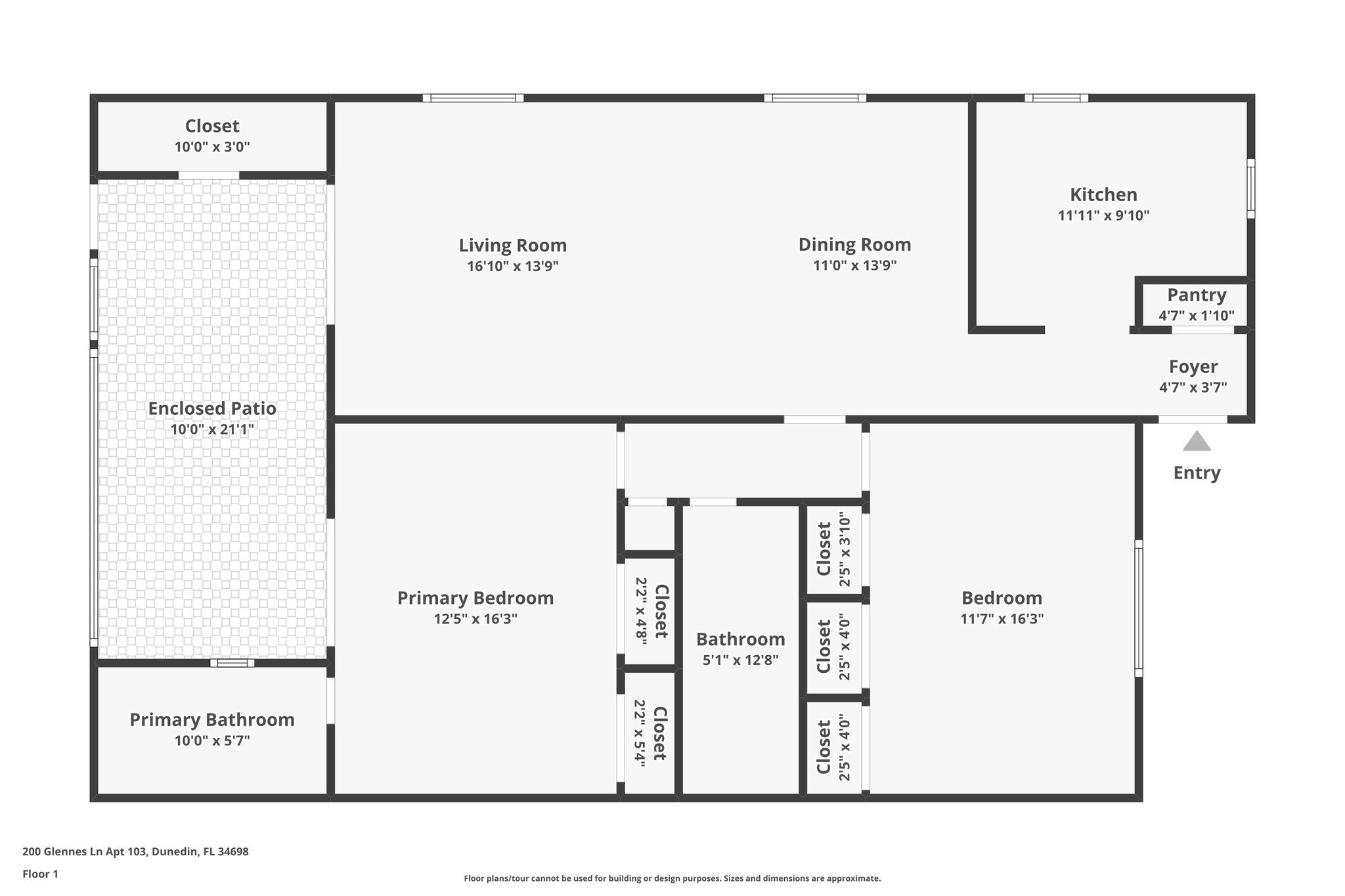
200 Glennes Ln 103, Dunedin, FL 34698
Toggle Navigation
Images
Floor Plans
3D Tour
Map
200 Glennes Ln 103
Dunedin, FL 34698
Scroll to Content
Images
Slideshow
Photo Grid
Hide
Previous
Next
Show more
Floor Plans
Slideshow
Photo Grid
Hide
Previous
Next
3D Tour